7441 Bording
Kontantpris
995.000,-
Månedlig ejerudgift
1.500,-
Type
Villa
Antal rum
6
Bygget
1930
Størrelse
172 m2
Plan
3
Ombygget
-
Grund
646 m2
Kælder
80 m2
Energimærke
F
Rummeligt og velindrettet familiehus i hjertet af Bording
Flot have, mange muligheder - tæt på skole, togstation og hverdagens bekvemmeligheder
Velkommen til Bredgade 25 - et lyst, rummeligt og velholdt hus på hele 172 m², beliggende midt i Bording med gå-afstand til skole, togstation, købmand, friluftsbad og daginstitution. Her får du en bolig med mange muligheder, en flot anlagt have og masser af ekstra plads til både hobby og opbevaring.
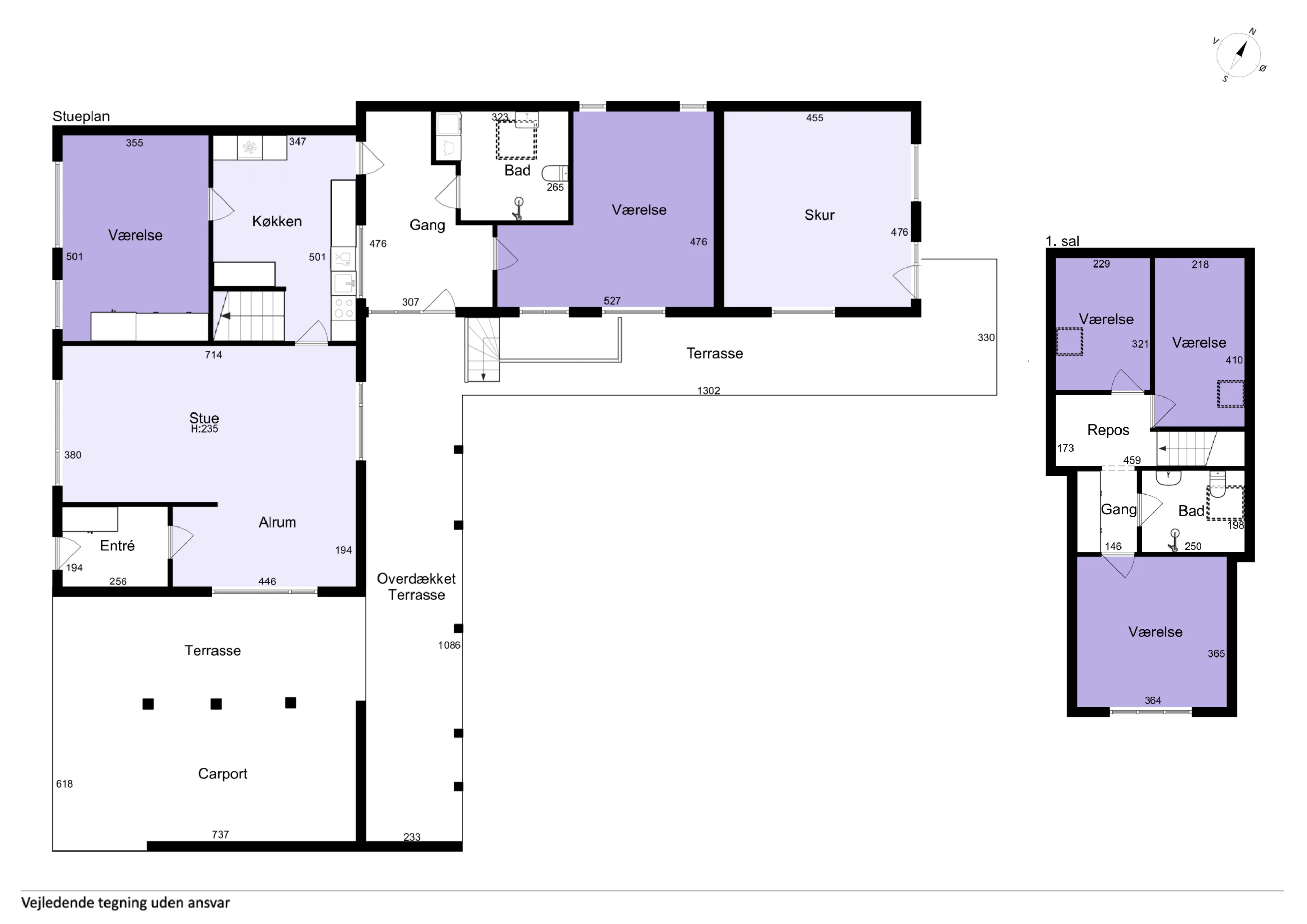
Huset er ideelt til den store familie, dig der ønsker god plads til aktiviteter - eller som drømmer om en bolig med mulighed for opdeling. Ejendommen er nemlig forberedt til at kunne fungere som to-familiehus: Der er allerede etableret vand og afløb i stuen, så der kan etableres et ekstra køkken, hvilket gør det muligt at opdele boligen lodret som to rækkehuslignende enheder - hver med eget køkken og badeværelse.
Indenfor finder du 6 gode værelser, 2 badeværelser og store, lyse opholdsrum med mange indretningsmuligheder. Her er plads til både familieliv, hjemmekontor og fritidsinteresser.
Udenfor venter en smukt anlagt have, der blomstrer fra marts til oktober og skaber en idyllisk ramme om udelivet. Herudover får du et stort have-/hobbyrum, perfekt til kreativ udfoldelse, og en stor kælder med masser af opbevaringsmuligheder - tidligere brugt som lille værksted.
Den centrale beliggenhed gør hverdagen let og praktisk. Bording Skole og Bording Børneby ligger begge tæt på, og toget kan nås på få minutter til fods, hvilket giver nem adgang til Herning, Ikast og resten af regionen.
Kort sagt: Et stort, fleksibelt og veldisponeret hus med en smuk have og en attraktiv beliggenhed tæt på alt - perfekt til både den moderne familie og jer, der ønsker mulighed for opdeling eller mere plads omkring jer.
Vil du høre mere om boligen?
Kontaktperson hos Estaldo
Mette Pedersen
Ejendomsmægler