5210 Odense NV
Kontantpris
1.895.000,-
Månedlig ejerudgift
2.046,-
Type
Villa
Antal rum
4
Bygget
1975
Størrelse
101 m2
Plan
1
Ombygget
-
Grund
720 m2
Kælder
0 m2
Energimærke
D
charmerende hus i Slukefter
ideelt til familien med skøn have
En af de mest bemærkelsesværdige træk ved denne ejendom er det store åbne vinduesparti, der vender ud mod den dejlige lukkede have. Dette skaber en lys og indbydende atmosfære, hvor man kan nyde udsigten til haven året rundt. Haven er et ideelt sted for børn at lege eller for voksne at slappe af med en god bog eller en kop kaffe. Den nyligt opførte hegn mellem denne ejendom og naboen på Nr. 16 sikrer både privatliv og en følelse af tryghed.
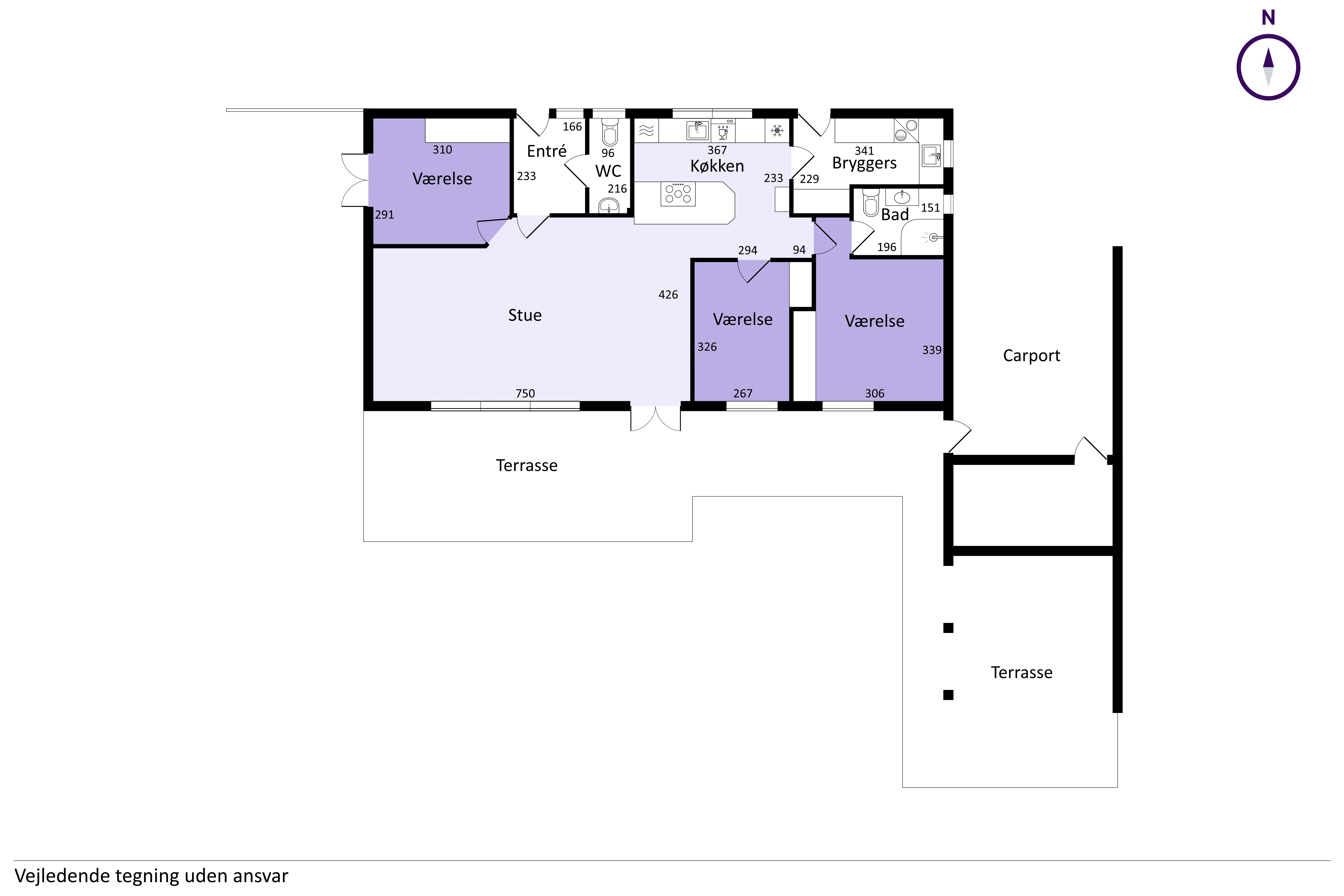
Boligen byder på et dejligt lyst køkken/ alrum i åben forbindelse til stuen, derudover har huset tre gode værelser, med masser af skabspladds. Et dejligt praktisk bryggers, et lyst badeværelse med bruseniche, samt et gæstetoilet.
Beliggenheden er en af husets store fordele. Korup Skole ligger tæt på, hvilket gør det nemt for børnene at komme til og fra skole. Derudover er Kronhjortløkken Børnehus også tæt på, hvilket gør det praktisk for familier med små børn. Området byder på en rolig og familievenlig atmosfære, hvor man kan nyde både bylivets bekvemmeligheder og naturens ro.
Dette hus er en fantastisk mulighed for dem, der søger et hjem med en perfekt balance mellem funktionalitet og æstetik. Med sine mange fordele og den attraktive beliggenhed er det et sted, hvor man kan skabe mange gode minder. Gå ikke glip af chancen for at blive en del af det skønne fællesskab i Slukefter.
Vil du høre mere om boligen?
Kontaktperson hos Estaldo
Steffen Christensen
Ejendomsmægler