7400 Herning
Kontantpris
2.775.000,-
Type
Villa
Antal rum
4
Bygget
1956
Størrelse
98 m2
Plan
1
Ombygget
-
Grund
497 m2
Kælder
97 m2
Energimærke
C
Gennemgribende moderniseret byhus i herning
Fantastisk beliggenhed, gå afstand til det meste
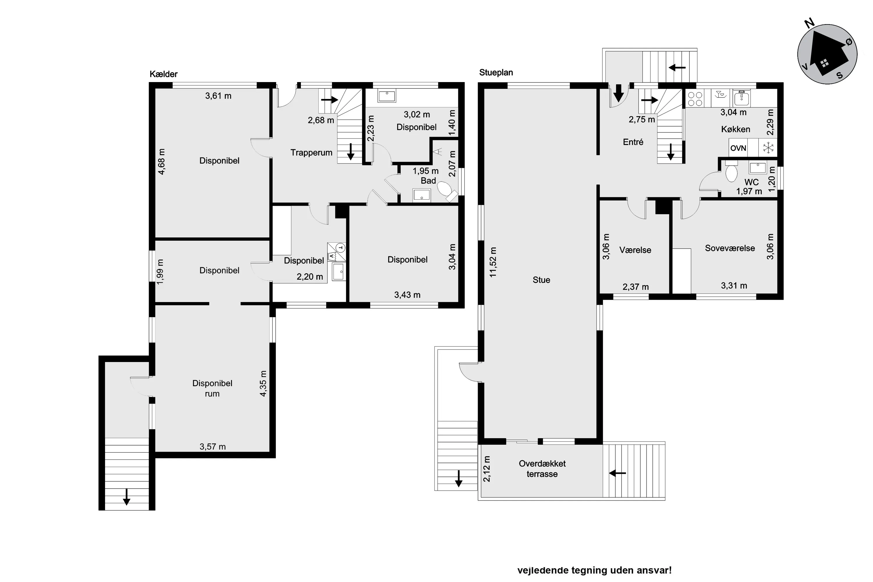
Det charmerende byhus på Sorøvej består af 98 kvm bolig plus kælder på 97 kvm. Huset er de seneste år gennemgribende moderniseret i både facader, tag, kælder og indretning. Her er to veldisponerede etager, begge i samme flotte, høje og moderne standard, og huset har generelt en skøn atmosfære.Kom først med indenfor i den øverste etage, hvor vi finder en dejlig rummelig entre, hvor I kan stille sko, hænge jakken, og parkere tasker. Fra entreen ligger køkkenet åbent mod dig og med kig herfra gennem huset mod stuen. Ved siden af er der et flot gæstetoilet og to værelser. I husets store, lyse stue, er der rig mulighed for at indrette spisestue i den ene ende og et hyggeligt sofaarrangement i den anden ende. Her er et dejligt lysindfald fra vinduer der går fra loft til gulv, og hvor man kan træde ud og nyde solen på den overdækkede terrasse eller gå ned i haven og til terrasserne i terræn. Kælderen er ikke godkendt til beboelse, men her er en høj boligstandard, hvor næsten alt er lavet i 2018-2021. Sælger har indrettet tre disponible rum i kælderen plus et walk-in-closet, et depotrum, et vaskerum, et nyere bryggers og et badeværelse. Her er højloftet (henholdsvis 2,10 meter og 2,30 meter) og gulvene er belagt med klinker eller trægulve, som understøtter den høje standard. En meget flot indretning, som kunne fungere til mange forskellige formål. I kælderen er der to separate indgange som kan benyttes.Haven udenfor er velholdt og ligger rigtigt placeret mod syd. Opdelingen i haven er halv terrasse og halv græsplæne, så man har masser af plads til udeliv og hygge både alene i familien, eller med familie og venner. Forhaven er lavet vedligeholdelsesnemt, med belægning og granitskærver i bedene. Langs huset er carporten og en god lang indkørsel. Der er fra carporten gennemgang til haven, hvor også cyklerne eller en barnevogn har fået egen carport.Huset har en rigtig fin placering i byen, hvor I er tæt på skoler, daginstitution, sportstilbud og uddannelsessteder. Byen, gågaden, butikslivet og torvet ligger blot 5-10 minutters gang fra huset