6200 Aabenraa
Kontantpris
995.000,-
Månedlig ejerudgift
1.163,-
Type
Villa
Antal rum
4
Bygget
1940
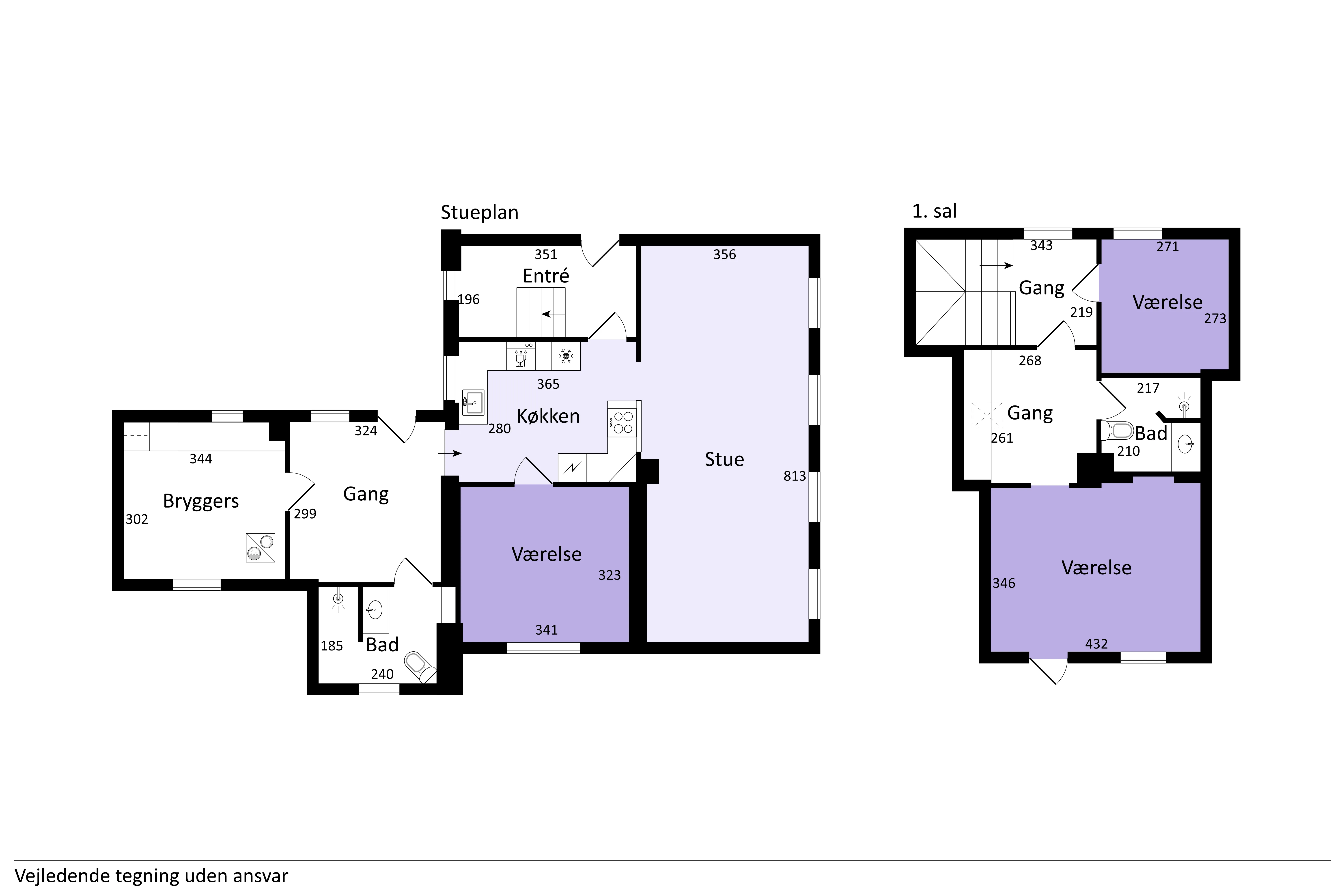
Størrelse
147 m2
Plan
2
Ombygget
-
Grund
1217 m2
Kælder
0 m2
Energimærke
E
Charmerende familieidyl i naturskønne omgivelser
Velholdt 4-værelses hus med moderne opdateringer nær Aabenraa
Opdag dette indbydende hjem i Bodum Bygade 5, der med sin ideelle placering tilbyder en perfekt balance mellem landlig charme og nærhed til byens faciliteter. Huset, der strækker sig over 147 kvadratmeter, er indrettet med fire rummelige værelser, der giver plads til hele familien og gæster.
Boligen ligger i hjertet af et hyggeligt lokalsamfund tæt på Løjt Kirkeby, og med en kort køretur kan du nå Aabenraa centrum, hvor shopping, kultur og caféer venter. Dagligdagen bliver let med Løjt Skole og Løjt Børnehus inden for behagelig afstand, hvilket gør morgenrutinerne til en leg for børnefamilier.
Huset har gennemgået en række forbedringer, der sikrer en moderne og bekymringsfri hverdag. Sælger har blandt andet ilagt nyere klikgulve pryder hele boligen, og et nyere toilet ovenpå tilføjer ekstra komfort. Det nyinstallerede 3-lags vindue under trappen sikrer en energieffektiv og lydisoleret bolig.
Med en varmvandsbeholder fra 2023 og en luft til vand varmepumpe fra 2021 er boligens opvarmning både økonomisk og miljøvenlig.
Hjemmets hjerte, køkkenet, er udstyret med moderne faciliteter, der gør madlavning til en fornøjelse, og de nyeste tilføjelser af hårde hvidevarer garanterer en problemfri hverdag. Boligen er desuden forsynet med en nyere radiator i 2023, hvilket sikrer en behagelig temperatur året rundt.
Denne ejendom er ideel for dem, der værdsætter et roligt og naturskønt miljø, samtidig med at de ønsker at være tæt på byens pulserende liv. Med nem adgang til Rødekro og motorvejsforbindelser er dette hjem perfekt for pendlere. Lad Bodum Bygade 5 blive rammen om jeres familiehistorie.
Vil du høre mere om boligen?
Kontaktperson hos Estaldo
Kim Hougaard
Ejendomsmægler